產品展示

詳細說明在線訂單
用途:
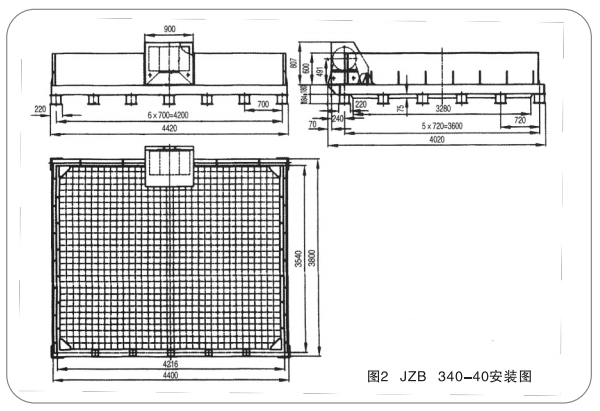
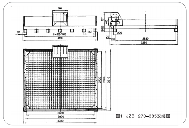
振動箆板是一個高頻振動的格柵,將其放置在礦槽上部,可防止因凍結或銹結成大團的屑狀或塊狀物料進入礦槽,否則大塊物料會在礦槽下部造成培塞。由于格柵的高頻振動,在防止大塊物料進入礦槽的同時,屑狀、塊狀的正常粒度能迅速落入礦槽,不會在格柵上堆積,對一些粘結強度不大的結塊還能起松散、碎塊作用,對維修入員能起安全防:護作用,因此是較理想的礦槽上部設備。振動箆板還可用于鑄件的落砂等其他用途。由于其結構簡単,造價低,己廣i乏應用于冶金、礦山、煤炭、機械、建材等行業。
選用須知:
1、箆板一般采用一臺振動電機激振,面積超過20m3的大型振動箆板采用兩臺振動電機激振。
2、訂貨時清按型號說明的規定寫明型號規格,要求的箆孔尺寸、被處理物料的粒度、散密度等數據。
3、我公司備有專用的電氣控制箱,可使振動箆板迅速平穩停車。建議用戶訂貨時配套訂購。